Creo Drawing Template #1
■ Drawing Template 필요성 Drawing Template은 자동으로 드로잉 도면을 만들수 있습니다. Drawing 모드에서 Drawing Template을 선택 합니다. Drawing 모드에서 모델의 "뷰"를 자동으로 선택 되고, 도면에 배치 됩
tool-2020.tistory.com
Drawing Template은 도면 환경 설정 및 Format 파일이 필요 합니다.


Format 파일은 Drawing Template 파일에 포함 되지 않습니다. pro_format_dir 에 정의된 폴더에서 Format 파일을 자동으로 불러옵니다. 즉 Drawing Template 파일은 Format 파일의 "이름"만 저장 됩니다.

ToolBOX VBA로 자동 도면 생성 프로그램은 설계자다 A0, A1, A3, 인지 선택하는 기능을 만들어야 합니다.
도면의 이름은 3D 모델 이름과 동일해야 합니다.
■ 도면 자동 생성 프로그램 사전 구축 내용
1. 구글 드라이버를 이용한 파일 서버 구성 (Config.pro)
1) pro_format_dir
2) start_dir
| Format 파일 | Template 파일 |
![]() |
![]() |
2. Format 파일 구성 및 Parameter 정의
1) start part 파일
2) start sheetmetal 파일
3) start assemble 파일

3. Drawing Template 구성
1) Drawing > Template view 구성
4. Part List 기능 추가 - Create DRW
■ Template 파이을 이용한 새로운 도면 생성
| 새로운 도면 만들기 | Template 파일 선택 |
![]() |
![]() |
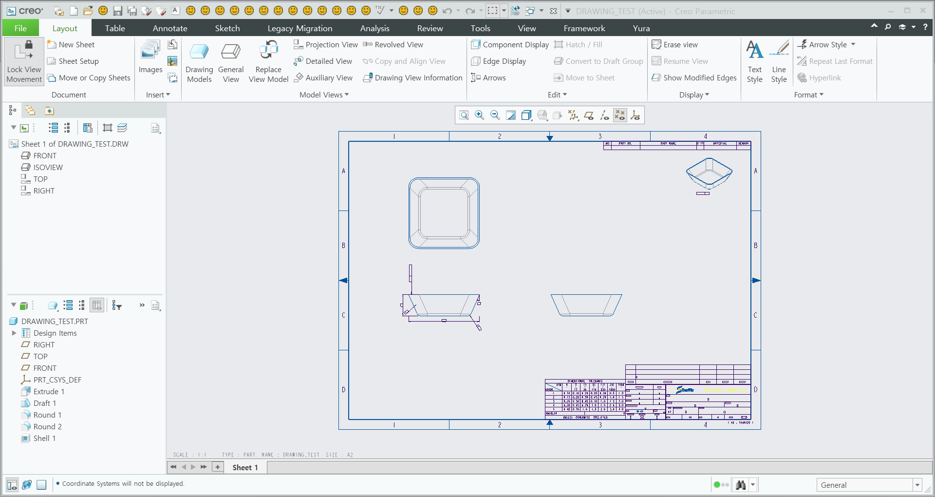
도면 생성
- 3D 모델의 치수들을 자동으로 표시 합니다. Template 구성 옵션을 변경 할수 있습니다

'Creo Reference Room > Drawing' 카테고리의 다른 글
| 도면 간 차이점 비교 (0) | 2023.01.11 |
|---|---|
| Creo Drawing Template #3 (0) | 2022.12.04 |
| Creo Drawing Template #1 (0) | 2022.11.29 |
| 기하공차 입력 시 소수점 숫자가 나타나지 않는 경우 (0) | 2022.08.31 |
| 드로잉 메모에서 매개변수를 사용하는 방법 (0) | 2022.07.30 |



